Plan間取り・プランについて

House Plan

建物+家具+
専属インテリアコーディネート付

バリニーズ 〈 バリニーズ 〉

平屋、1.5階、2階、3階。
暮らしに合わせて選べる家

FEATURES バリニーズの特徴

  1. 1建物価格に家具が含まれているからマイホーム購入時の手出し費用も軽減できる!

  2. 2内装も専属コーディネーターと一緒に決められて
    おしゃれな空間を実現できる!

  3. 3外観デザインももちろん
    イメージに合わせて
    カラーセレクトできる!

  4. 4選べるオプションも豊富だから理想通りの空間を
    作ることができる!

01 バリニーズHIRAYA

アイランドキッチンの開放的な間取りと
暮らしを楽しむテラスのある平屋住宅。

3LDK + TERRACE

建物+家具+
専属インテリアコーディネート付

SPEC

1F面積:
75.35㎡(22.79坪)
延床面積:
75.35㎡(22.79坪)
建築面積:
82.81㎡(25.05坪)

その他、様々なプランを用意しております

02 バリニーズ1.5F

新提案の1.5F建て。
将来を考えたちょうどいいサイズ感を。

3LDK + WIC

建物+家具+
専属インテリアコーディネート付

SPEC

1F面積:
52.99㎡(16.02坪)
2F面積:
26.49㎡(8.01坪)
延床面積:
79.48㎡(24.03坪)
建築面積:
52.99㎡(16.02坪)

その他、様々なプランを用意しております

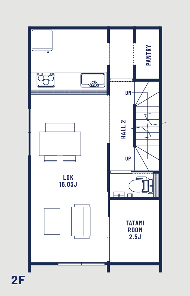
03 バリニーズ2.0F

今の暮らしを見つめて。
やっぱり2階建てを選びたいあなたへ。

3LDK + TERRACE

建物+家具+
専属インテリアコーディネート付

SPEC

1F面積:
40.57㎡(12.27坪)
2F面積:
40.57㎡(12.27坪)
延床面積:
81.14㎡(24.54坪)
建築面積:
40.57㎡(12.27坪)

その他、様々なプランを用意しております

04 バリニーズ3.0F

都市型のコンパクトサイズの土地には
3階建ても選べる提案。

3LDK + GARAGE

建物+家具+
専属インテリアコーディネート付

SPEC

1F面積:
28.56㎡(8.63坪)
2F面積:
37.26㎡(11.27坪)
3F面積:
25.67㎡(7.76坪)
延床面積:
91.49㎡(27.66坪)
建築面積:
37.26㎡(11.27坪)

その他、様々なプランを用意しております